Description
Recently refurbished to an extremely high standard we are delighted to offer sale this spacious two bedroom maisonette with substantial private yard to the rear. Benefiting from a newly installed (February 2025) combination boiler and with majority UPVC sealed unit double glazing and sealed unit double glazing throughout. With brand-new carpets and decoration throughout and within easy walking distance of the town centre and its many amenities. A viewing is highly recommended.
DIRECTIONS
From our Buxton office turn right and turn right at the roundabout. Proceed along Station Road travelling straight across the next roundabout and turn left at the following two roundabouts into Fairfield Road. The property can be seen just after the turning for Lightwood Road on the left hand side.
GROUND FLOOR
Communal Entrance Porch
Lounge/Dining Kitchen (8.78 expanding to 3.96m narrowing to 4.14m)
Lounge area with brand new carpet throughout, single radiator, and sealed unit double glazed bay window to front. Kitchen area with a range of base and eye level units and working surfaces, incorporating a stainless steel single drainer sink unit with tiled splash backs. With integrated stainless steel oven with four ring stainless steel gas hob with extractor over. With space for a larder fridge, breakfast bar, and Vaillant wall mounted combination boiler. Single radiator. With uPVC sealed unit double glazed window to rear with views across Buxton.
Landing/Study Area
With brand new carpet throughout, and uPVC sealed unit double glazed window to rear with stairs to the lower ground floor.
LOWER GROUND FLOOR
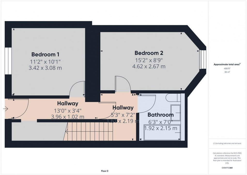
Hallway (3.96 x 1.02)
With brand new carpet throughout and single radiator. Door to rear patio.
Bedroom One (3.42m x 3.08m)
Single radiator and uPVC sealed unit double glazed window to rear.
Bedroom Two (4.62m x 2.67m)
With brand new carpet throughout, single radiator and uPVC sealed unit double glazed window to outside.
Bathroom (1.92 x 2.15)
Fitted with a panelled bath with mixer shower over, low level W.C., and pedestal wash hand basin. Fully tiled throughout, tiled flooring, and extractor fan.
Storage cupboard (0.86 x 1.03)
With space and plumbing for a washing machine.
OUTSIDE
To the rear of the property is a good sized flagged patio area with views across Buxton.
Floorplan
EPC
To discuss this property call us:
Market your property
with Mellors Estate Agents
Book a market appraisal for your property today.
