Description
NO CHAIN!! Converted within recent years we are delighted to offer for sale this spacious, superbly presented two bedroom apartment, situated in a popular residential location. The property benefits from sealed unit double glazing and combi gas fired central heating throughout. With allocated off road parking a viewing is highly recommended.
DIRECTIONS
From our Buxton office bear left and proceed up Terrace Road, across the Market Place to the London Road traffic lights. At the lights bear right onto West Road and after a short while take the first left hand turning onto College Road. Proceed along College Road where no. 21 will be found on the left hand side clearly identified by our For Sale board.
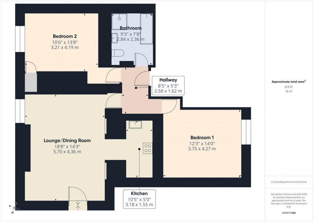
Lounge/Dining Room (5.69m x 4.34m)
With a wall mounted pebble effect electric fire, double radiator, single radiator, telephone point, TV aerial point and sealed unit double glazed window.
Kitchen (3.18m x 1.52m)
Fitted with an excellent quality range of base and eye level units and working surfaces incorporating a one and a half bowl stainless steel single drainer sink unit. With AEG induction hob and oven and stainless steel extractor over, integrated fridge freezer and integrated dishwasher.
Inner Hallway (2.57m x 1.60m)
Bedroom One (4.27m x 3.73m)
With double radiator and sealed unit double glazed window.
Bedroom Two (4.17m x 3.20m)
With double radiator and sealed unit double glazed window.
Storage Cupboard
With wall mounted Worcester combination central heating and hot water boiler.
Bathroom (2.82m x 2.34m)
Fitted with an excellent quality suite comprising a panelled bath, fully glazed shower cubicle and shower, wall mounted washbasin and low-level w.c. Heated towel rail and extractor fan.
OUTSIDE
An allocated off road parking space.
Floorplan
EPC
To discuss this property call us:
Market your property
with Mellors Estate Agents
Book a market appraisal for your property today.
