Description
Nestled in the Historic Spa town of Buxton, The Old Post Office, The Quadrant is a characterful Grade II listed property offering this delightful four bedroom, two bathroom first and second floor maisonette that beautifully combines modern living with classic character. This stunning apartment is situated in a prime location in Buxton's Town Centre providing easy access to the town's renowned attractions, including the stunning Pavilion Gardens and the historic Buxton Opera House and the town centre and its many amenities. The apartment would make a lovely town centre home, second home or holiday let and our clients have run a successful holiday let business for many years. Pets will be considered subject to the Management Company approval. Apartment 3 offers over 1600 ft² of accommodation which has been converted within recent years. Superbly appointed throughout, on the first floor there is a generous lounge, fully fitted dining kitchen with integrated appliances, breakfast bar and separate cloakroom There are two bedrooms the master having en-suite facilities with underfloor heating. On the second floor of the apartment there are two further generous bedrooms and a master bathroom. Apartment 3 benefits from allocated off-road parking as well as ground floor storage for bikes etc. and has access to a communal patio garden with outside seating. Within easy walking distance of the train station, taxi rank and bus stops. With extremely generous accommodation this stunning apartment should be viewed to be fully appreciated.
DIRECTIONS
The apartment is located in the Quadrant in central Buxton within a two minute walk of our Buxton office.
GROUND FLOOR
Communal Entrance Hall
With stairs to apartments 1, 2 and 3.
SECOND FLOOR
Entrance Hall (2.97m x 1.12m)
With a Victorian style radiator and arched window.
Inner Hallway (6.25m x 1.12m)
With a Victorian style radiator, telephone security entrance point, arched window and stairs to second floor of the apartment.
Cloakroom (1.45m x 0.97m)
With a low-level w.c., wall mounted washbasin and extractor fan. Wall mounted combination central heating and hot water boiler.
Lounge (6.40m x 4.62m)
With three Victorian style radiators, TV aerial point, feature exposed brick fireplace opening with granite hearth open to the dining kitchen and two feature arched windows.
Dining Kitchen (5.33m x 5.05m)
Fitted with an excellent quality range of base and eye level units and working surfaces incorporating a one and a half bowl stainless steel single drainer sink unit with splashback. Integrated four ring induction hob with stainless steel extractor over and oven below, integrated dishwasher, integrated washer/dryer and integrated larder fridge and freezer. Breakfast bar, two sash windows and one arched window.
Bedroom One (4.62m x 3.43m)
With a Victorian style radiator, TV aerial point and sash window.
En-Suite Wet Room (1.09m x 2.97m)
With a fully tiled walk-in shower cubicle and rainfall shower, low-level w.c. and vanity washbasin. Stainless steel heated towel rail, extractor fan, underfloor heating and two frosted sash windows.
Bedroom Four (2.97m x 2.21m)
With a Victorian style radiator and arched window.
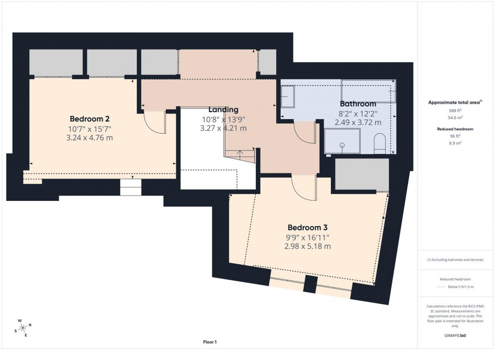
SECOND FLOOR OF THE APARTMENT
Landing (4.19m x 3.25m)
With a Victorian style radiator and access to eaves storage.
Bedroom Three (5.16m x 2.97m)
With a Victorian style radiator, TV aerial point and two Velux sealed unit double glazed loft windows. Access to eaves storage and window.
Bedroom Two (4.75m x 3.23m)
With a Victorian style radiator, TV aerial point, Velux sealed unit double glazed loft window and access to eaves storage.
Bathroom (3.71m x 2.49m)
Fitted with an excellent quality suite comprising panelled bath, low level w.c., vanity washbasin, fully tiled and glazed walk-in shower unit with rainfall shower. Extractor fan, part tiled walls, underfloor heating and Velux sealed unit double glazed loft window.
Floorplan
EPC
To discuss this property call us:
Market your property
with Mellors Estate Agents
Book a market appraisal for your property today.
