Description
We are delighted to be able to offer for sale this exclusive and unique development of luxury apartments, town houses and cottages in this highly sought after residential area of Buxton. The conversion of The Alison Park Hotel will retain numerous period features as well as being upgraded to the very highest of standards with excellent quality fixtures and fittings throughout. The development will consist of 10 luxury two bedroom apartments and some will have a garden or terrace or balcony. There will also be two substantial four bedroom town houses and a row of three, two bedroom cottages. All of the properties will have allocated off road parking. Alison Park stands in delightful communal grounds with allocated parking areas and formal gardens including lawned areas and mature shrubs and trees. There will be electric car charging points installed in the grounds. Further details will be released as the development progresses. Apartment 6 is located on the first floor of the development and is accessed from Temple Road via the main entrance where there is a lift to all floors. The accommodation briefly comprises of an entrance hall with storage cupboard. There is a very well proportioned lounge with windows to front overlooking the communal gardens. The dining kitchen is fitted with an excellent range of base and eye level units and Quartz working surfaces incorporating integrated appliances including an induction hob, oven, dishwasher and fridge/freezer. A separate utility room with Quartz work surfaces. The main bathroom has a walk-in double shower unit and shower. Two further bedrooms, the master having an en-suite bathroom.
Location
The Roman Spa town of Buxton, famous for its mineral and spring water, sits amongst some of the most beautiful countryside in England, being on the edge of the Peak District National Park whilst being accessible to the cities of Manchester, Sheffield and Derby. The town boasts magnificent architecture including the Crescent, now a luxury spa hotel, which is a superb example of the Georgian period built around 1780 for William Cavendish the Duke of Devonshire by John Carr of York. The annual Buxton festival attracts visitors from across the world while many people visit the town to sample its mineral and spring water, to stroll through the Victorian Pavilion Gardens, and enjoy the surrounding Peak District countryside. There is a direct train link from Buxton into Stockport and Manchester while Manchester Airport is approximately 25 miles of the town.
DIRECTIONS
From our Buxton office turn right and bear left at the roundabout. Turn left into St Johns Road and after a short while turn left into Burlington Road. At the end, turn right into Bath Road and proceed across Macclesfield Road into College Road. Alison Park is prominently situated at the junction of College Road and Temple Road with access from both sides.
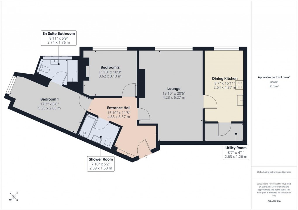
FIRST FLOOR
Entrance Hall (4.83m x 3.56m)
With two wall light points and telephone entrance security point.
Lounge (6.25m x 4.22m)
With four wall light points, double radiator and sealed unit double glazed windows overlooking the communal gardens.
Dining Kitchen (4.85m x 2.62m)
Fitted with an excellent quality range of base and eye level units and Quartz working surfaces incorporating a four ring induction hob, oven, dishwasher and integrated fridge/freezer. Double radiator and sealed unit double glazed window overlooking the communal gardens.
Utility Room (2.62m x 1.24m)
With base and eye level units and Quartz working surfaces and integrated washing machine.
Bedroom One (5.23m x 2.64m)
With three wall light points, double radiator and sealed unit double glazed window.
En-suite Bathroom (2.72m x 1.75m)
Fitted with an excellent quality suite comprising panelled bath with shower over and shower screen, low-level w.c. and pedestal washbasin. Part tiled, extractor fan and stainless steel heated towel rail.
Bedroom Two (3.61m x 3.12m)
With double radiator and sealed unit double glazed window overlooking the communal gardens.
Shower Room (2.39m x 1.57m)
Fitted with an excellent quality suite comprising pedestal washbasin and low-level w.c.. Fully tiled and glazed double shower unit with rainfall shower, extractor fan and stainless steel heated towel rail.
Floorplan
To discuss this property call us:
Market your property
with Mellors Estate Agents
Book a market appraisal for your property today.
