Description
We are delighted to offer for sale this immaculately presented and appointed extended four bedroom, two bathroom family home. Situated at the end of a small cul-de-sac of three properties, Solomons View sits in an extensive plot with lawned gardens to three sides, plus a further woodland garden area. The dining kitchen benefits from quartz working surfaces and a full range of integrated appliances. The ground floor also benefits from a substantial garden room extension to the rear giving further family living accommodation. . Benefitting from combi gas fired central heating and uPVC sealed unit double glazing throughout, this beautiful family home is centrally located for the town's many amenities in both Lower and Higher Buxton and should be viewed to be fully appreciated.
DIRECTIONS
From our Buxton office turn left and proceed up Terrace Road to the Market Place. Turnleft into Hardwick Mount, follow the road as it becomes Hardwick Square East. Follow the road which then becomes Silverlands and turn right into Clifton Road. Follow this road as bends to the left and then right onto Peveril Road and turn first left into Solomons View. Immediately on the right hand side there is a cul-de-sac of three houses, this property is at the end on the left-hand side.
GROUND FLOOR
Entrance Porch (1.83m x 0.53m)
With tiled flooring, uPVC front entrance door and two uPVC sealed unit double glazed windows to outside.
Entrance Hall (5.23m x 0.91m)
With wood effect laminate flooring, stairs to first floor and glazed door and windows through to the dining kitchen.
Cloakroom (1.65m x 0.79m)
With low-level W.C., vanity wash-hand basin and single radiator. Tiled flooring and half tiled throughout with a frosted window to the front porch.
Dining/Kitchen (7.77m x 2.39m)
Kitchen Area
Fitted with an excellent quality range of base and eye level units and quartz working surfaces, incorporating a one-and-a-half bowl single drainer sink unit with tiled splashbacks. With integrated Neff induction hob with stainless steel extractor over, integrated Neff oven; integrated fridge/freezer; washing machine; dishwasher and Neff Microwave. With stainless steel feature radiator, uPVC sealed unit double glazed window to the Garden Room and uPVC sealed unit double glazed door to the side porch.
Dining Area
With a central island with breakfast bar with quartz work surfaces and seating for six people. Wiht two uPVC sealed unit double glazed windows to outside, single radiator and glazed door through into the Entrance Hall.
Side Porch (2.08m x 1.30m)
uPVC sealed unit double glazed throughout with door to outisde. Tiled flooring.
Lounge (4.42m x 3.66m)
With a feature decorative fireplace surround and mantel over, incorporating a coal effect living flame gas fire. With T.V., aerial point, wood effect laminate flooring, two feature radiators and uPVC sealed unit double glazed French doors leading through into the Garden Room.
Garden Room (6.27m x 3.00m)
WIth four uPVC sealed unit double glazed windows to outside, uPVC sealed unit double patio doors to outside, three Velux sealed unit double glazed loft windows and two wall-light points. Two feature radiators.
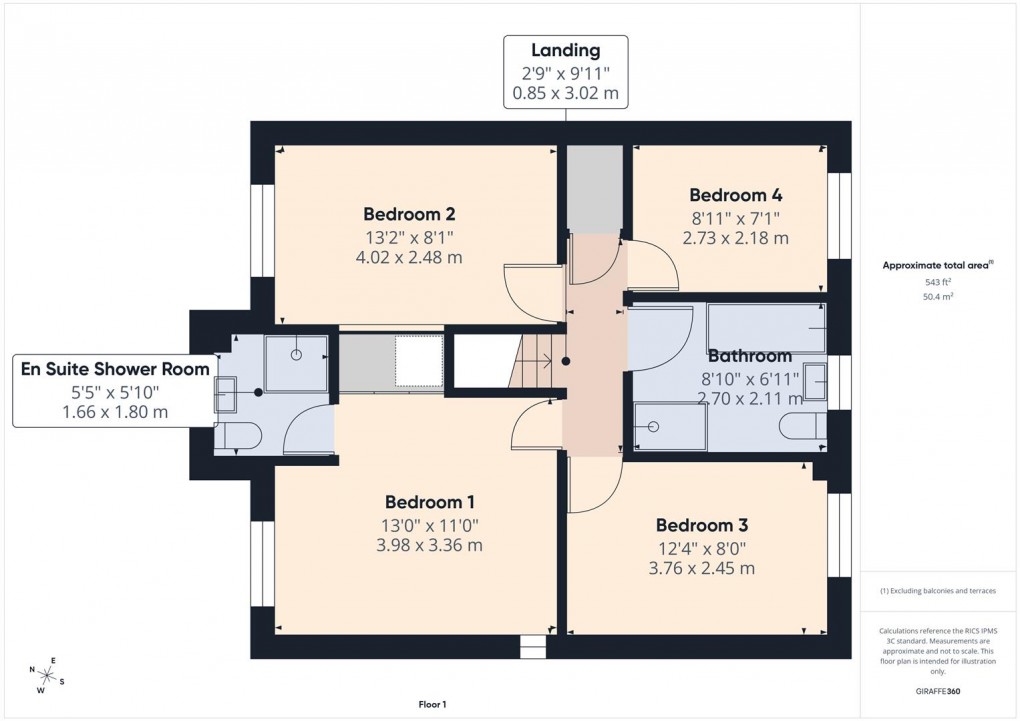
FIRST FLOOR
Landing (3.02m x 0.84m)
WIth built-in storage cupboard with wall mounted combination central heating and hot water boiler.
Bedroom One (3.96m x 3.35m)
With two built-in mirrored double wardrobes, two uPVVC sealed unit double glazed windows to outside, single radiator.
En-Suite Shower Room (1.78m x 1.65m)
With a fully tiled and glazed shower cubicle and shower, vanity wash-hand basin and low-level W.C. Stainless steel heated towel rail, extractor fan and frosted uPVC sealed unit double glazed window to outside.
Bedroom Two (4.01m x 2.46m)
With built-in triple wardrobe, single radiator and uPVC sealed unit double glazed window to outside.
Bedroom Three (3.76m x 2.44m)
Single radiator and uPVC sealed unit double glazed window to outside.
Bedroom Four (2.72m x 2.16m)
With single radiator, loft access and uPVC sealed unit double glazed window to rear.
Bathroom (2.69m x 2.11m)
Fitted with an excellent quality suite comprising a panelled bath ,pedestal wash basin and LLWC. With glazed and mermaid board shower cubicle and shower , stainless steel towel heated rail and frosted Upvc sealed unit double glazed window to outside.
Integral Garage (4.62m 2.49m)
With remote and up-and-over door. Power and light.
OUTSIDE
To the front of the property there is a large Tarmacadam driveway suitable for the off-road parking of a number of vehicles.
Gardens
There are extensive lawned gardens to both the rear and side of the property with well stocked shrubs, plants and trees etc., and mature shrubs and bushes etc., to the front. There is a separate fenced woodland garden area.
Floorplan
EPC
To discuss this property call us:
Market your property
with Mellors Estate Agents
Book a market appraisal for your property today.
