Description
Situated on the charming Corbar Road with far reaching views across the picturesque town of Buxton, this delightful end terrace house has a perfect blend of comfort and style. Originally built in the second half of the 19th century retaining many features and character. The well proportioned accommodation is set over four floors offering versatile living that can be tailored to your needs. Located in Buxton, known for its stunning natural beauty and rich history, this home is perfectly positioned to enjoy the local amenities, including shops, parks, and schools. The surrounding area offers a wealth of outdoor activities, making it a haven for nature lovers and those who appreciate the great outdoors.
DIRECTIONS
From our Buxton office turn right and bear left at the roundabout. Follow the road around to the right into Manchester Road and take the second right turning into Devonshire Road. Turn immediately left into Corbar Road and continue along this road for a while where 61 can be seen on the left hand side.
GROUND FLOOR
Entrance door to Entrance Porch with tiled effect flooring. Wood and glazed panels and door to hallway.
Hallway (5.49m x 1.75m)
Stairs to first floor. Decorative Cornice. Radiator. Parquet wooden flooring.
Reception Room (3.89m x 3.78m)
Wooden composite double glazed sash bay window to front. Wooden flooring. Two vertical radiators and gas fire (not currently in use) inset into chimney breast. Cornice, picture rail and skirting.
Kitchen/Diner (7.92m x 2.72m)
Range of base and eye level units and work surfaces. One and a half bowl stainless steel sink unit with mixer tap. Built in double oven and microwave oven. Gas hob with extractor above. Tiled splashbacks. Spot lighting. Tiled flooring with underfloor heating. Opening to dining area with exposed stone wall. Space for fridge/freezer. Velux window. uPVC window to rear and uPVC door to side.
W.C/utility Room (1.83m x 1.83m)
Tiled flooring. uPVC window to rear. Low level W.C. Pedestal wash basin. Plumbing and space for a washing machine.
Cellar (5.13m x 3.61m)
Exposed stone walls. Power and lighting. Tiled flooring. uPVC window to front.
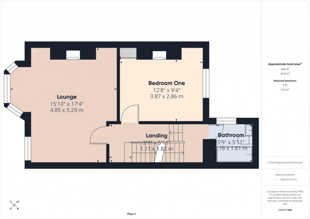
FIRST FLOOR
Landing (1.80m x 1.09m)
Single radiator and stairs to second floor.
Bathroom (1.80m x 1.75m)
Panel enclosed bath with shower. Wash basin with drawer unit. Low level W.C . Tiled effect flooring. Tiled walls. Radiator. Chrome towel rail. uPVC window to side.
Bedroom One (3.86m x 2.84m)
uPVC sash window to rear. Built in cupboard. Radiator.
Lounge (5.28m x 4.83m)
Two wooden composite double glazed sash windows to front with far reaching view across Buxton. Feature fireplace with cast iron insert stone surround and tiled hearth. Cornice and picture rail. Two radiators.
SECOND FLOOR
Landing
uPVC window to rear. Skirting.
Bedroom Two (3.84m x 2.84m)
Currently used as an office. uPVC window to rear. Cast iron fireplace. Built in wardrobe and shelving. Radiator. Skirting.
Bedroom Three (3.89m x 2.44m)
Built-in wardrobe. Wooden composite double glazed sash window to front. Wooden flooring. Cast iron fireplace. Shelving. Radiator.
Bedroom Four (2.84m x 2.16m)
Velux window to side. Radiator. Laminate flooring.
OUTSIDE
Steps to gated gravel pathway leading to the front of the house. Various shrubs, trees and hedge borders.
Garden
Tiered garden with patio area, steps to gated lawned area bordered by fencing and hedging leading to further enclosed lawned area backing onto green land.
Floorplan
To discuss this property call us:
Market your property
with Mellors Estate Agents
Book a market appraisal for your property today.
