Description
A beautifully appointed and presented four bedroom, two reception family home centrally situated in the town within easy reach of the town centre's many amenities. With excellent quality fittings throughout, the property benefits from uPVC sealed unit double glazing and combi gas fired central heating. With lower ground floor storage cellars and good sized flagged seating area to the rear, this beautiful family home should be viewed to be fully appreciated.
DIRECTIONS
From our Buxton office, bear left and proceed up Terrace Road and across the Market Place to the London Road traffic lights. Turn left into Dale Road and follow the road. After a short while turn right into Crowestones and No. 8 will be seen on the right hand side.
GROUND FLOOR
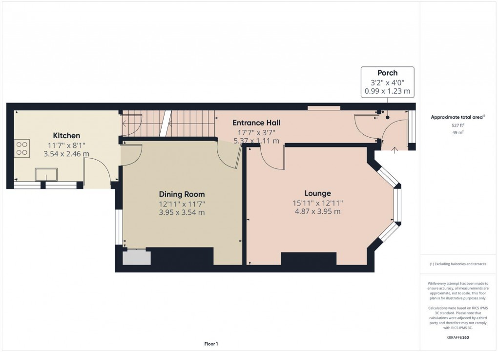
Entrance Porch (1.22m x 0.97m)
With uPVC sealed unit double glazed door and windows and tiled flooring. Door to main hallway.
Entrance Hall (5.36m x 1.09m)
With engineered wood flooring, ceiling cornice, single radiator and stairs to first floor.
Lounge (4.85m x 3.94m)
With a feature decorative wooden fireplace surround and mantelpiece over, incorporating a coal effect living flame gas fire. With engineered wood flooring, double radiator, ceiling cornice, picture rail, T.V. aerial point and uPVC sealed unit double glazed bay window to front.
Dining Room (3.94m x 3.53m)
With engineered wood flooring, Victorian style radiator, built-in storage cupboards and uPVC sealed unit double glazed window to rear. Door to kitchen.
Kitchen (3.53m x 2.46m)
Fitted with an excellent quality range of base and eye level units and working surfaces, incorporating a Neff stainless steel oven with Neff four ring stainless steel gas hob and stainless steel extractor over. Single drainer sink unit, integrated dishwasher, two uPVC sealed unit double glazed windows to side and frosted uPVC sealed unit double glazed door to outside. Wood effect laminate flooring and door to cellar.
FIRST FLOOR
Landing (2.64m x 1.85m)
With stairs to second floor and single radiator.
Bedroom One (5.23m x 4.01m)
With decorative stone fireplace surround with open grate, double radiator and two uPVC sealed unit double glazed windows to front.
Bedroom Two (3.96m x 3.23m)
With uPVC sealed unit double glazed window to rear and double radiator.
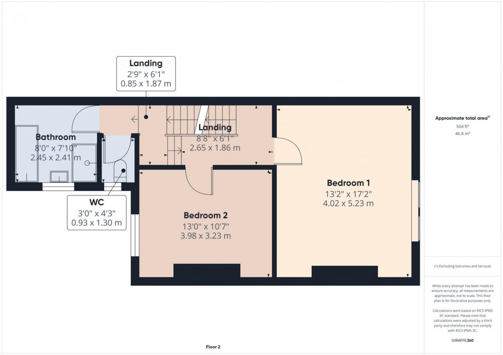
Bathroom (2.44m x 2.39m)
With a free standing claw foot bath, double glazed and Mermaid board double shower unit and shower, single radiator and extractor fan. Half tiled walls and frosted uPVC sealed unit double glazed window.
Cloakroom (1.30m x 0.91m)
With high-level W.C. and frosted uPVC sealed unit double glazed window.
SECOND FLOOR
Landing (2.49m x 1.68m)
With Velux sealed unit double glazed loft window, access to eaves storage and loft access.
Bedroom Three (4.88m x 4.04m)
With feature cast iron fireplace, double radiator and uPVC sealed unit double glazed window.
Bedroom Four (3.94m x 3.40m)
With feature cast iron fireplace, double radiator and Velux sealed unit double glazed loft window.
LOWER GROUND FLOOR
Hallway (6.07m x 0.84m)
Cellar Room One (3.81m x 3.63m)
With light and power and wall mounted Vaillant combination central heating and hot water boiler.
Cellar Room Two (3.76m x 3.25m)
With light and power.
OUTSIDE
To the front of the property the front garden is gated with a flagged pathway with mature shrubs and bushes etc. To the rear of the property there is a good sized flagged yard area and decked seating area.
Floorplan
EPC
To discuss this property call us:
Market your property
with Mellors Estate Agents
Book a market appraisal for your property today.
